top of page
Allterra Solar – Tenant Improvement
2024-2025
Santa Cruz, CA, USA
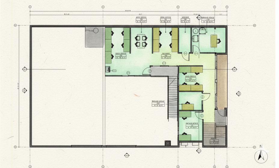
This efficient project, the Allterra Solar – Tenant Improvement (TI) Project at 207 McPherson Street in Santa Cruz, CA, involved transforming an existing warehouse shell into a modern office suite for Allterra Solar, executed by Nielsen Studios. Spanning approximately 3,500 SF , the interior tenant improvement, with an estimated construction budget of $500,000 to $1M, created a fully functional office space, including open work areas, private offices, a conference room, kitchen, and reception, designed to meet all current building codes, accessibility standards, and energy performance goals.


1/1
bottom of page






